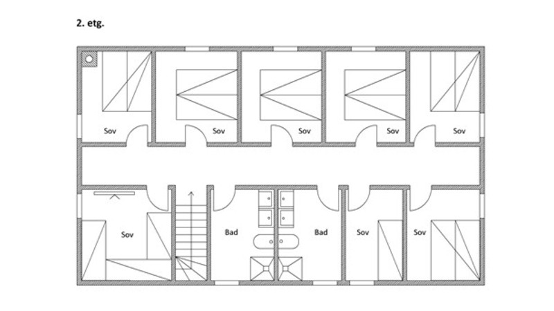
Fristående stuga i 2 plan. Öppen planlösning mellan allrum och köksavdelning med en inbjudande soffgrupp, öppen spis, långbord och köksö. 7 sovrum och 3 badrum. Stora fönster från golv till tak, utsikt mot fjället och dalen. På första våningen finns ett badrum med bastu och två duschar. På andra våningen finns 2 badrum och 8 sovrum, varav ett är ett hobbyrum med TV.
Storlek: 160m2
Kök: Praktiskt kök med dubbla diskmaskiner, kylskåp med frys, stor spis, ugn & micro.
Sovrum
Sovrum 1: 1 dubbelsäng eller 2 enkelsängar.
Sovrum 2: 1 dubbelsäng eller 2 enkelsängar.
Sovrum 3: 2 enkelsängar 80cm bred
Sovrum 4: 1 familjesäng 150 cm bred underslaf.
Sovrum 5: 1 familjesäng 150 cm bred underslaf.
Sovrum 6: 1 familjesäng 150 cm bred underslaf.
Sovrum 7: Aktivitetsrum med TV, och 3 enkelsängar 80cm breda.
Sovrum 1: 1 dubbelsäng eller 2 enkelsängar.
Sovrum 2: 1 dubbelsäng eller 2 enkelsängar.
Sovrum 3: 2 enkelsängar 80cm bred
Sovrum 4: 1 familjesäng 150 cm bred underslaf.
Sovrum 5: 1 familjesäng 150 cm bred underslaf.
Sovrum 6: 1 familjesäng 150 cm bred underslaf.
Sovrum 7: Aktivitetsrum med TV, och 3 enkelsängar 80cm breda.
Sovrum 8: 1 våningssäng där både över och underslaf är 85cm breda.
Badrum
Bad 1: 2 duschar, 2 handfat, WC, bastu, badkar
Bad 2: dusch, WC
Bad 3: dusch, WC
Bad 1: 2 duschar, 2 handfat, WC, bastu, badkar
Bad 2: dusch, WC
Bad 3: dusch, WC
Övrigt: Braskamin, TV, skotork, skidförråd, altan. 1 barnstol & 1 barnsäng finns i boendet.
Alla inkvarteringar i Hemsedal är självhushåll (undantag för hotell) så glöm inte att ta med lakan & handduk om ni inte bokar till detta. I alla lägenheter så finns det disktrasa & diskhandduk samt några diskmaskinstabletter vid ankomst. Det ingår alltså inte toalettpapper, handdiskmedel & diskmaskinstabletter. Detta får man ta med själv.
Viktigt att veta
Husdjur och rökning är inte tillåtet. För att kunna boka denna boenheten måste gästen fyllt 25 år. Alla i sällskapet måste ha fyllt 18 år. Gäller ej barn i målsmans sällskap. Den som är ansvarig för bokningen måste bo i enheten under hela uppehållet.
Välkomna att boka er skidresa under Avgångar & priser


























